23 Austin Rd, East Greenwich, RI 02818
Toggle Navigation
Details
Images
Floor Plans
Map
23 Austin Rd
East Greenwich, RI 02818
Scroll to Content
Details
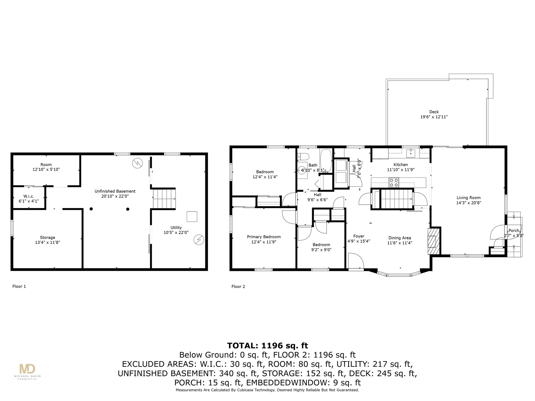
3 Bedrooms
1,268 Sq/ft
Built in 1959
Images
Slideshow
Photo Grid
Hide
Previous
Next
Show more
Floor Plans
Slideshow
Photo Grid
Hide
Previous
Next